De Hoeve Tuinhuis Anjum 44 | 5,1 x 3,6 m

16% korting
Artikelnummer
GH4409820
Adviesprijs 4.615,- Speciale prijs 3.855,-
  • 10 Jaar garantie*
  • Supersnelle levering
  • Laagste prijsgarantie
? Bij de Hoeve Buitenleven hebben we verschillende dakbedekkingen in ons assortiment. We raden u aan om een keuze te maken voor een kwalitatief goede dakbedekking zoals zelfklevend dakfolie of EPDM dakbedekking. Deze dakbedekkingen hebben een eigen uitstraling en zorgen ervoor dat u lang gebruik kan maken van uw product.
Geen
Geen
EPDM dakfolie
EPDM dakfolie + 401,50

Gekozen:

Placeholder
Onderuitloop
+ 26,-

Gekozen:

Placeholder
Ja
+ 56,-

Gekozen:

? U kan als optie kiezen voor een regenpijpset, deze wordt geleverd inclusief bevestigingmaterialen en een uitloop bocht onderaan
Geen
Geen
PVC Afvoerset
PVC Afvoerset + 50,-
Zinken Afvoerset
Zinken Afvoerset + 166,-

Gekozen:

? Een aluminium daktrim geeft een mooie uitstraling en zorgt ervoor dat de dakbedekking op een nette manier wordt afgewerkt.
Geen
Geen
Blank
Blank
Zwart
Zwart

Gekozen:

Placeholder
Ja
+ 56,-

Gekozen:

Placeholder
Ja
+ 98,-

Gekozen:

Placeholder
Ja
+ 128,-

Gekozen:

Placeholder
Ja
+ 224,-

Gekozen:

? Funderingsbalken zorgen er voor dat de onderste balklaag op een verhoging staat, zodat het regenwater gemakkelijk afgevoerd wordt en de balklaag droog blijft. Hierdoor gaat uw product langer mee, en kan u hier lang van genieten.
Geen
Geen
Ja
Ja + 160,-

Gekozen:

? Ventilatieroosters in uw blokhut of tuinhuis zorgen voor verse frisse lucht. Daarnaast voorkomt het vocht in uw blokhut. Tip: Plaats de ventilatie roosters diagonaal in uw tuinhuis voor een optimale luchtcirculatie. We vragen € 14,- voor de gehele blokhut, u ontvangt 2 sets van 2 stuks.
Geen
Geen
Ja
Ja + 14,-

Gekozen:

? De houten vloer die de Hoeve Buitenleven aanbiedt bestaat uit 18mm dikke planken. Bevestigingmaterialen en geimpregneerde tussenliggers worden hier bij geleverd. Met de aanleg van een houten beschermt u het tuinhuis of de blokhut tegen optrekkend vocht, waardoor de spullen in het tuinhuis mooi blijven. De houten binnen vloer is voor het tuinhuis of blokhut gedeelte. U heeft de keuze uit een onbehandelde vloer of een hogedruk geïmpregneerde ondervloer
Geen
Geen
Onbehandeld
Onbehandeld + 600,-
Geïmpregneerd
Geïmpregneerd + 750,-

Gekozen:

? Het is mogelijk om het tuinhuis vooraf te laten behandelen. Dompel impregneren is een (voor)behandeling en maakt het tuinhuis 2 jaar onderhoudsvrij, hogedruk impregneren is een eindbehandeling waardoor het tuinhuis 15 jaar onderhoudsvrij is.
Geen
Geen
Zwart dompel geïmpregneerd
Zwart dompel geïmpregneerd + 578,-
Groen hogedruk geïmpregneerd
Groen hogedruk geïmpregneerd + 578,-
Bruin hogedruk geïmpregneerd
Bruin hogedruk geïmpregneerd + 578,-

Gekozen:

? Onze vakmensen kunnen dit model voor u monteren. Hieronder vindt u drie verschillende opties. Pakket 1 = montage van het model. Pakket 2 = montage van het model + dakgoot of vloer. Pakket 3 = montage van het model + dakgoot + vloer. Let op: deze pakketten betreffen uitsluitend de montage. De gewenste dakgoot of vloer kunt u hierboven aanklikken. Na het plaatsen van de bestelling wordt u telefonisch benaderd voor het maken van een bezorg- en montageafspraak.
Geen
Geen
Pakket 1
Pakket 1 + 2.689,-
Pakket 2
Pakket 2 + 2.739,-
Pakket 3
Pakket 3 + 3.239,-

Gekozen:

Opnieuw samenstellen

De Hoeve Tuinhuis Anjum 44 | 5,1 x 3,6 m

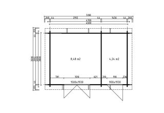
De Hoeve Tuinhuis Anjum 44 is een stijlvol en praktisch tuinhuis met twee aparte ruimtes, ideaal voor wie graag werk en opslag gescheiden houdt.
Met een royale buitenmaat van 5,1 x 3,6 meter creëer je een fijne plek in de tuin voor hobby, werk of ontspanning.
De grootste ruimte (ca. 8,48 m²) is perfect als tuinkamer, werkruimte of hobbyruimte en biedt veel daglicht dankzij de grote dubbele deuren met glas.
De tweede ruimte (ca. 4,24 m²) is ideaal als berging voor tuinmeubelen, gereedschap of fietsen en is bereikbaar via een aparte enkele deur.
Dankzij deze slimme indeling kun je het tuinhuis multifunctioneel gebruiken zonder dat alles door elkaar staat.
Het Scandinavisch vurenhout geeft het tuinhuis een warme, natuurlijke uitstraling en zorgt voor een stevige basis.
Met een wanddikte van 44 mm is het model solide en geschikt voor intensief gebruik gedurende het hele seizoen.
Het moderne platte dak zorgt voor een strakke uitstraling die goed past bij zowel moderne als klassieke tuinen.
Een ideale keuze voor iedereen die een praktische én mooie oplossing zoekt voor extra ruimte in de tuin.

Wil je dit tuinhuis helemaal naar eigen wens samenstellen? Maatwerk is mogelijk: denk aan afmetingen, indeling, ramen/deuren en extra opties. Ook kun je kiezen voor impregneren en zijn er verschillende kleuren mogelijk, zodat het tuinhuis perfect past bij jouw tuin. Inspiratie opdoen in het echt? Bezoek onze showtuin in Kesteren en bekijk diverse modellen en uitvoeringen. Benieuwd naar de mogelijkheden of wil je graag advies? Ons personeel staat voor je klaar om met je mee te denken en je te helpen bij het maken van de juiste keuze.

Eigenschappen

  • - Materiaal: Scandinavisch vurenhout
  • - Houtdikte: 44 mm
  • - Binnenruimte: 12,72 m² (2 aparte ruimtes)
  • - Afmeting: 5,1 x 3,6 m
  • - Extra: twee afzonderlijke ingangen (dubbele deur + enkele deur) voor optimale indeling
Meer informatie
Dakbedekking Exclusief
Merk De Hoeve Buitenleven
Materiaalsoort Scandinavisch vurenhout
Productsoort Tuinhuizen, Blokhutten, Tuinkantoren, Bergingen, -
Daktype Platdak
Behandeling Onbehandeld
Lengte 500 - 549 cm
Diepte 350 - 399 cm
Afmetingen 5,1x3,6
Artikelnummer GH4409820

Uw samenstelling

Bezorgkosten

In heel Nederland (behalve de eilanden) leveren we uw bestelling we voor €99,- bij u thuis. In België zijn de bezorgkosten €200,-. Deze kosten worden bij het afrekenen toegevoegd aan uw bestelling. Als u meer wilt weten over bezorging en tarieven, neem dan gerust contact met ons op.

Heeft u een vraag?

Fijne service op locatie

Zeer tevreden met de firma De Hoeve netjes geleverd en vriendelijke mensen. Was een ruitje stuk gegaan tijdens transport werd netjes en snel opgelost!

Oval loader